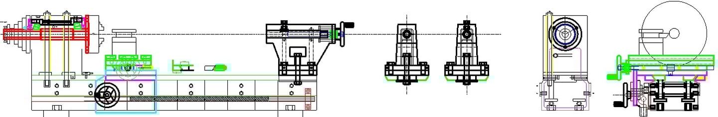
CAD Technical Drawings
Access detailed and dimensioned drawings for your homemade Hi Lo Metal Lathe project
and start building today !

Hi Lo Metal Lathe Drawings
Access comprehensive drawings and specifications to build your own Hi Lo Metal Lathe accurately and effectively. Perfect for DIY enthusiasts and metalworking hobbyists looking for a great homemade lathe project.
Coming later in 2026 ...
Hi Lo Metal Lathe
Build your own metal lathe
Enquiries
info@hilometallathe.com
© 2024. All rights reserved.
