Tailstock
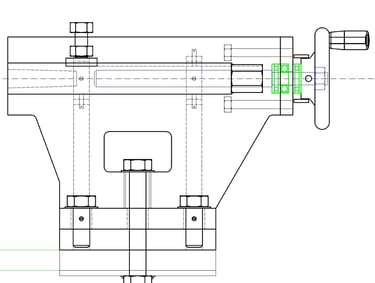
Positioned opposite the Headstock, the Tailstock is aligned with the axis of the Ways, and can slide along the Ways, to or from the Headstock.


We will send you a free copy of these Lathe Design Notes (PDF file)
by entering your Name and Email below ...or you can visit the My Store pages and download from there ...


The Spindle includes a female #2 Morse taper to hold a drill chuck, drill bits, centres and other tooling. A centre is used to secure the end of a work piece for turning between centres.
The Spindle travels longitudinally in the X-axis under the action of the leadscrew and handwheel.
The Spindle will be aligned with reference to the Tailstock baseplate by the use of ‘centering screws’ as seen in the drawing. The off-setting screws that bear against the four base bolts, along with shims under the Tailstock base, allows for final Spindle alignment to the axis of the Ways. The off-setting screws also allow for a specific misalignment of the Tailstock, used for long taper turning.
A Spindle clamping bolt is also provided, such that the Spindle can be locked at any desired position.
Once aligned, the assembly is placed in a mould box, to be set with the epoxy granite mixture.
The spindle blank and #2 Morse plug as shown below, were items that I purchased over forty years ago. Not only does that show that I have wanted to build a metal lathe since then, but also that lathe design and components, have not changed that much over time.
Recently I have purchased both a live and dead centre for use in the Tailstock. I will be using both centres in the ‘wood lathe’ setup to machine the Headstock and Tailstock Spindles.




Drill press chucks are commonly #2 Morse taper, and my drill chuck will be used in the Tailstock when drilling is required.
Hi Lo Metal Lathe
Build your own metal lathe
Enquiries
info@hilometallathe.com
© 2024. All rights reserved.
